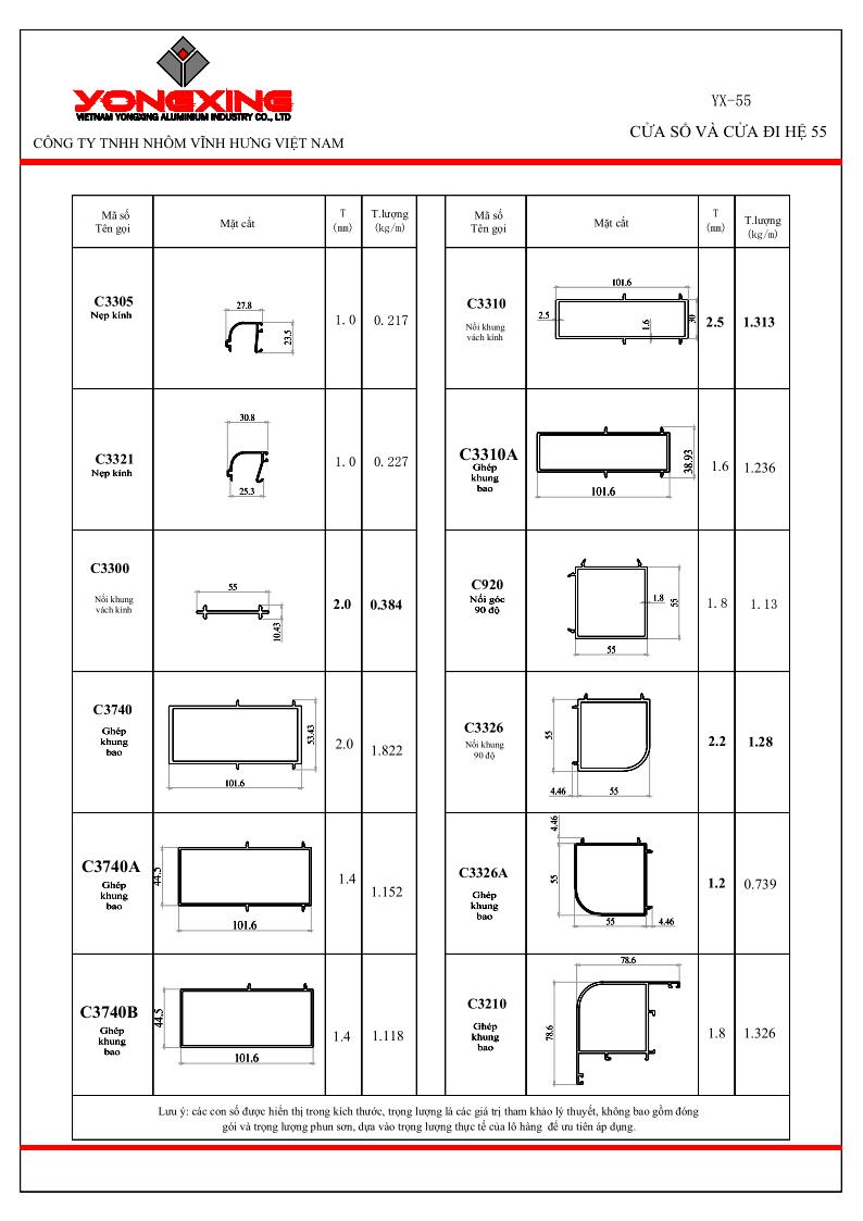
VIETNAM YONGXING ALUMINIUM INDUSTRY CO., LTD and located at Lot Lot 129, 130, 131A, Long Giang Industrial Park, Tan Phuoc 3 Commune, Dong Thap Province, Vietnam. Please contact us via the official website: https://yongxingvn.com

YX55 Window